Powered by
ホーム 千代田区の居抜き・セットアップオフィスを探す 移転コスト大幅削減可能!秋葉原駅徒歩4分のWi-Fi付セットアップオフィス

移転コスト大幅削減可能!秋葉原駅徒歩4分のWi-Fi付セットアップオフィス

募集終了
仲介手数料無料
エリア:千代田区
広さ:〜30坪
席数:10〜19席
公開日:2024.11.26

物件のご紹介

『NOVEL WORK AKIHABARA』は、ビジネス街としての人気も高い【秋葉原エリア】に誕生する、スタートアップに人気の内装工事済みセットアップオフィスです。

JR「秋葉原駅」から徒歩わずか4分、「東京駅」や「新宿駅」など都心主要エリアへの移動も非常にスムーズで、事業拡大の営業拠点としても最適な立地です。

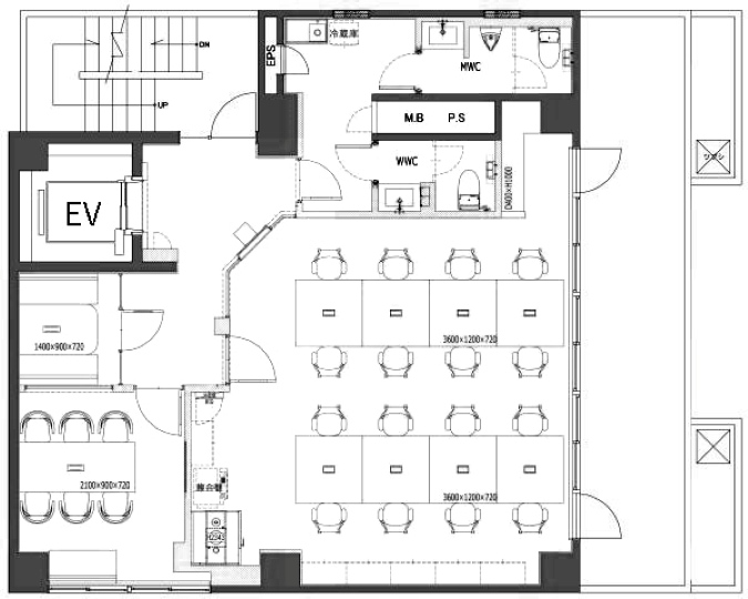
2025年9月に内装造作付きセットアップ工事が完了し、ご入居後は新しく快適なオフィス環境で事業をスタートいただけます。執務スペースは16席完備しており、社内外の打ち合わせにも柔軟に対応できる6名用と4名用(ソファ席)の会議室計2室、さらに集中作業やウェブ会議に不可欠なテレカンブース1室を標準装備。貴重なWi-Fi完備の物件で、入居後すぐに業務を開始できる点も大きな魅力です。

さらには、資金繰りが重要なスタートアップ企業様に人気の高い【敷金最大0ヶ月】かつ【原状回復不要】物件であることに加え、弊社貸主物件のため【仲介手数料無料】と、オフィス移転にかかるコストを大幅に削減できる、コストパフォーマンス抜群の物件となっております。

人気の秋葉原エリアで、これ以上ないコストメリットを誇る優良物件です。お問い合わせの増えることが予想されますので、ご検討の際はぜひお早めにお問い合わせください。

おすすめポイント

  1. 当社貸主物件のため仲介手数料不要
  2. 【敷金最大0ヶ月/原状回復不要】に加え、【仲介手数料無料】の優良物件
  3. JR「秋葉原駅」徒歩4分、都内主要ビジネスエリアへのアクセスも抜群
  4. 会議室にテレカンブース、執務室16席、Wi-Fiまで完備したフルセットアップオフィス
  5. 2025年9月セットアップ工事が完了、新しい内装と最新設備を利用可能

同ビル別フロアの物件はこちら

菅野 勇人

営業担当者

菅野 勇人

宅地建物取引士

セットアップオフィスから一般的なオフィスまで、多種多様なオフィスビルの魅力や特徴を熟知したオフィス物件マニア。

スタートアップ企業の移転支援経験が多く、そこで得た知見を活かし、お客様の理想のオフィス探しを全力でサポートいたします。

この物件を問い合わせる
物件概要
物件番号 s-2225
物件名 NOVEL WORK AKIHABARA
所在地 東京都千代田区神田佐久間町3-37-4
最寄り駅 JR 秋葉原駅
徒歩4分

東京メトロ日比谷線
秋葉原駅 徒歩4分

都営新宿線
岩本町駅 徒歩6分
階数 4階
面積 26.97坪(89.16㎡)
推奨席数 16席
物件タイプ フルセットアップオフィス
会議室数 4名掛け会議室×1室
6名掛け会議室×1室
テレカンブース数 1室
竣工年 1985年8月
特徴・設備 # 敷金無し # 原状回復免除 # テレカンブース付き # 会議室付き # Wi-Fi完備 # 男女別トイレ # 2路線利用可 # 最寄り駅から徒歩5分以内
募集条件
月額賃料@坪単価 809,100円(坪30,000円)
敷金 / 保証金 最大0ヶ月
償却
礼金
更新料 / 再契約料
入居可能日 即日
契約期間 2年
原状回復有無
保証契約

※表示価格は税抜き価格です。

この物件を問い合わせる

物件のお問い合わせフォーム

オフィス物件を探す

キーワード
カテゴリー

Get In Touch!!

希望条件が決まっていなくても、オフィス移転のプロが要件定義からご一緒させていただきます。まずはお気軽にご相談くださいませ。

お電話でのお問い合わせはこちら

03-6858-3030

平日
9:00~18:00